Centro Corrieri Val Polcevera muro di contenimento

ANNO PRESTAZIONE: 05/12/2018 – 21/11/2019

IMPORTO LAVORI:
S05 € 768.609,64

IMPORTO CATEGORIE:
V02 € 517.585,00
S04 € 1.282.415,00

LUOGO: Genova

COMMITTENTE: Centro Corrieri Valpolcevera

PRESTAZIONE: valutazione di vulnerabilità sismica, simabonus e interventi migliorativi statici e sismici


DATI TIPOLOGICI

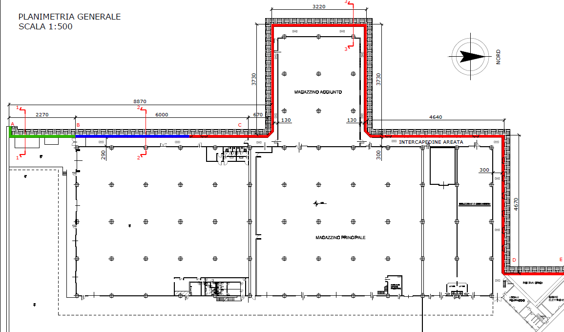
SVILUPPO IN LUNGHEZZA m: 231,90
ID OPERE: S03
ZONA SISMICA: A3
TIPOLOGIA STRUTTURA: muro di contenimento
INDICE DI SICUREZZA SISMICA: G ante
E post

OBIETTIVI ONU AGENDA 2030

Descrizione

L’attività svolta riguarda la valutazione statica e sismica, il progetto esecutivo del consolidamento del muro di contenimento dell’edificio industriale nel Centro Corrieri Valpolcevera, la Direzione dei lavori, la sicurezza in fase di progettazione e di esecuzione, il sismabonus e l’asseverazione finale.

L’Analisi statica e simica sulla struttura esistente ha richiesto un attento esame dello stato di fatto e delle criticità legate a vetustà e a stabilità, per mutamenti dovuti alla presenza di acque nel terreno spingente dietro al muro.

Inoltre, varie porzioni murarie presentavano caratteristiche tipologiche differenti, sia per le dimensioni geometriche, sia per le opere fondazionali. Si sono quindi rese necessarie indagini approfondite, anche in situ. In particolare, criticità si sono evidenziate nelle zone di transizione tra le differenti tipologie.

Altro aspetto delicato è stato quello di esecuzione delle opere di rinforzo, da eseguire in una intercapedine con limitati spazi di accesso e manovra.

I consolidamenti sono consistiti in realizzazione di cordoli aventi funzione di fondazione e in tiranti di stabilizzazione.

Particolare cura è stata dedicata allo smaltimento delle acque con realizzazione di drenaggi profondi mediante installazione di tubi microfessurati e dreni.

Elaborati progettuali